Moderne Mietfläche im Wissenschaftspark Kiel in direkter Nähe zur Universität (Glasfaseranbindung 1 GBit/s) |  Wissenschaftspark Kiel

Mietangebote

Moderne Mietfläche im Wissenschaftspark Kiel in direkter Nähe zur Universität (Glasfaseranbindung 1 GBit/s)

Objekt ID
I012-004
Objektart
Büro/Praxis oder
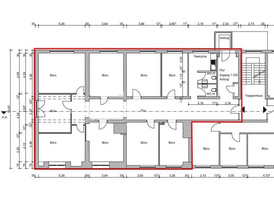
Büro/Praxisfläche
237,26 m²
Verfügbar ab
01.02.2026
Etage
1 von 4
Breitbandzugang
1 GBit/s

Kosten

Kaltmiete
3.084 €
Nebenkosten
446 €
Mieterprovision
dieses Angebot ist provisionsfrei
Kaution
3-fache Bruttomonatsmiete

Bausubstanz & Energieausweis

Baujahr
1930
Zustand
Gepflegt
Befeuerung
Fernwärme, Zentralheizung
Energieausweis
liegt vor
Energieausweistyp
Verbrauchsausweis
Mit Warmwasser
ja

Beschreibung

Diese hochwertige Mietfläche befindet sich in unmittelbarer Nachbarschaft zum Wissenschaftszentrum sowie zur Christian-Albrechts-Universität Kiel.
Die attraktive Lage bietet ein angenehmes Arbeitsumfeld mit verschiedenen gastronomischen Angeboten und einer sehr guten Verkehrsanbindung.
Überdachte Parkplatzflächen in ausreichender Menge stehen in unmittelbarer Nähe zur Verfügung und können hinzugemietet werden.

Lage

Das Objekt befindet sich in attraktiver Lage im Herzen des Wissenschaftsparks. Das Quartier liegt am Westring mit unmittelbarer Anbindung an die B 76. Öffentlicher Nahverkehr mit den Linien 6, 42 und 91 befindet sich in rund 250 m Entfernung. Auf der Veloroute 10 ist eine direkte Abfahrt zur Christian-Albrechts-Universität und zum Wissenschaftspark vorhanden.

Im Quartier Wissenschaftspark haben sich bisher rund 100 Unternehmen mit bereits heute über 2.000 Mitarbeitende angesiedelt. Durch die aktuellen Neubauvorhaben wird die Anzahl der Mitarbeiter um rund 400 Mitarbeiter wachsen. Die Stadteile Ravensberg und Düsternbrook sind ebenso fußläufig erreichbar wie der Campus der angrenzenden Christian-Albrechts-Universität mit mehr als 27.000 Studierenden und rund 3.700 Mitarbeitern.

Zum Quartier gehören mit EDEKA ein Nahversorger, die Bäckerei Günther, ein B & B - Hotel mit 88 Zimmern und mit dem FIT auch ein Functional Fitness-Anbieter.

Der Wissenschaftspark Kiel ist aufgrund seiner citynahen Lage sowohl per Auto als auch per ÖPNV sehr gut erreichbar. Die Entfernung zum Flughafen in Hamburg beträgt ca. eine Stunde bei Transfer mit dem Auto. Der Hauptbahnhof Kiel ist in ca. 15 Minuten per KfZ erreichbar.

Ausstattung

Die zu vermietenden Büroräume befinden sich im 1. Obergeschosses des robert-bosch-hauses im Wissenschaftspark Kiel.
Die Bürofläche verfügt über schöne Räume mit viel Tageslicht und sorgt damit für eine angenehme Arbeitsatmosphäre. Das Büro verfügt außerdem über eine kleine aber feine Küchenzeile. Moderne sanitäre Anlagen befinden sich in der Mieteinheit. Die Mietfläche ist barrierefrei erreichnbar.

Umgebungskarte

Ansprechpartner

Name
Frau Immobilien Managerin Lara Hensel
E-Mail
l.hensel@dc-services.de
Telefon
+49 - (0)+49 431 556811 - 56