Hochwertige Gastronomiefläche im Wissenschaftspark Kiel |  Wissenschaftspark Kiel

Mietangebote

Hochwertige Gastronomiefläche im Wissenschaftspark Kiel

Objekt ID
I46
Objektart
Gastgewerbe oder Restaurant
Gastrofläche
174 m²
Balkon-/Terrassenfläche
130 m²
Verfügbar ab
1. Quartal 2026
Gastraumplätze
90
Breitbandzugang
1000

Kosten

Kaltmiete
4.455 €
Nebenkosten
594 €
Mieterprovision
dieses Angebot ist courtagefrei
Kaution
3-fache Bruttowarmmiete

Bausubstanz & Energieausweis

Baujahr
2025
Befeuerung
Fernwärme, Fußbodenheizung

Lage

Das Objekt wird in attraktiver Lage im Herzen des Wissenschaftsparks errichtet. Das Quartier liegt am Westring mit unmittelbarer Anbindung an die B 76. Öffentlicher Nahverkehr mit den Linien 6, 42 und 91 befindet sich in rund 250 m Entfernung. Auf der Veloroute 10 ist eine direkte Abfahrt zur Christian-Albrechts-Universität und zum Wissenschaftspark vorhanden.

Im Quartier Wissenschaftspark haben sich bisher rund 100 Unternehmen mit bereits heute über 2.000 Mitarbeitern angesiedelt. Durch die aktuellen Neubauvorhaben wird die Anzahl der Mitarbeiter um rund 400 Mitarbeiter wachsen. Die Stadteile Ravensberg und Düsternbrook sind ebenso fußläufig erreichbar wie der Campus der angrenzenden Christian-Albrechts-Universität mit mehr als 27.000 Studierenden und rund 3.700 Mitarbeitern.

Zum Quartier gehören schon heute mit EDEKA ein Nahversorger, die Bäckerei Günther, ein B & B - Hotel mit 88 Zimmern und mit dem FIT auch ein Functional Fitness-Anbieter.

Ausstattung

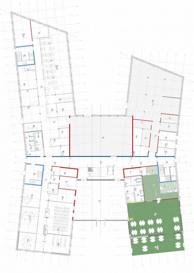
Im Wissenschaftspark erfolgt der Neubau eines Büro- und Medienhauses, das auch Standort für das neue NDR Landesfunkhaus Schleswig-Holstein sein wird. Das Gebäude hat eine Gesamtfläche von rund 8.800 m² auf vier Geschossen. Vorgesehen ist eine DGNB-Gold-Zertifzierung und das Qualitätssiegel Nachhaltiges Gebäude (QNG). Im Erdgeschoss befindet sich ein repräsentatives Eingangsfoyer mit einer Größe von rund 190 m², von dem der Zugang zu der Gastronomiefläche und zum Hauptmieter NDR erfolgt.

Der Gastronomiebereich hat eine Größe von rund 270 m², davon rund 175 m² Gastraum. Zusätzlich wird im Außenbereich eine teilweise überdachte Terrasse mit 130 m² zur Verfügung stehen. Die separaten Sanitärbereiche (D/H und barrierefrei) sind im Foyer vorhanden. In Abhängigkeit von der gemeinsam mit dem Betreiber festgelegten Ausgestaltung der Gastronomiefläche (Ausbaustandard) wird die Miete festgelegt.

Die Großzügigkeit des Restaurantbereiches wird durch die lichte Raumhöhe von knapp 4,4 m mit einer raumhohen und großflächigen Glasfront zur Straße geprägt.

Der Foyerbereich mit einer lichten Raumhöhe von ist 8,6 m ist insgesamt als Versammlungsstätte für bis zu 200 Personen zugelassen. Bei einer abzustimmenden Integration von Teilen des Foyerbereiches in die Nutzungsüberlegungen ergeben sich damit weitere interessante Nutzungsflächen von rund 190 m² im Innenbereich.

Parkplätze (auch barrierefrei und Elektrolademöglichkeit) stehen in ausreichender Anzahl im gegenüberliegenden Parkhaus mit 586 Stellplätzen zur Verfügung.

Highlights:
- energieeffizienter Neubau mit Fertigstellung im 1. Quartal 2026
- großzügige Gastronomie mit Außenbereich und Einbindung der Foyerfläche und damit auch für Veranstaltungen nutzbar
- lichtdurchflutet durch deckenhohe Verglasung mit Blend- und Wärmeschutz
- Mitgestaltungsmöglichkeiten bei der Planung
- über 100 Firmen mit rund 2.400 Mitarbeitenden, von denen einige an bisherigen Standorten auch eigene Kantinen hatten. Daher besteht eine hohe Bereitschaft, über Zuschüsse zum Mittagstisch Anreize zur Nutzung zu schaffen.
- großzügiges Parkplatzangebot mit insgesamt 586 Stellplätzen im Parkhaus

Umgebungskarte

Die dargestellte Position der Immobilie ist nur eine ungefähre Angabe.

Ansprechpartner

Name
Herr Geschäftsführer Sven Jahnke
E-Mail
s.jahnke@dc-services.de
Telefon
+49 - (0)+49 431 8001860 - 6